Correspondence:
AK Soccer - Signed MOU - Dated November 1, 2023
AK Soccer Academy MOU - Certified Resolution No. 2023-340 - Dated October 10, 2023
_________________________________________________________________________________________________________________________________________
Updated Nov. 25, 2025:
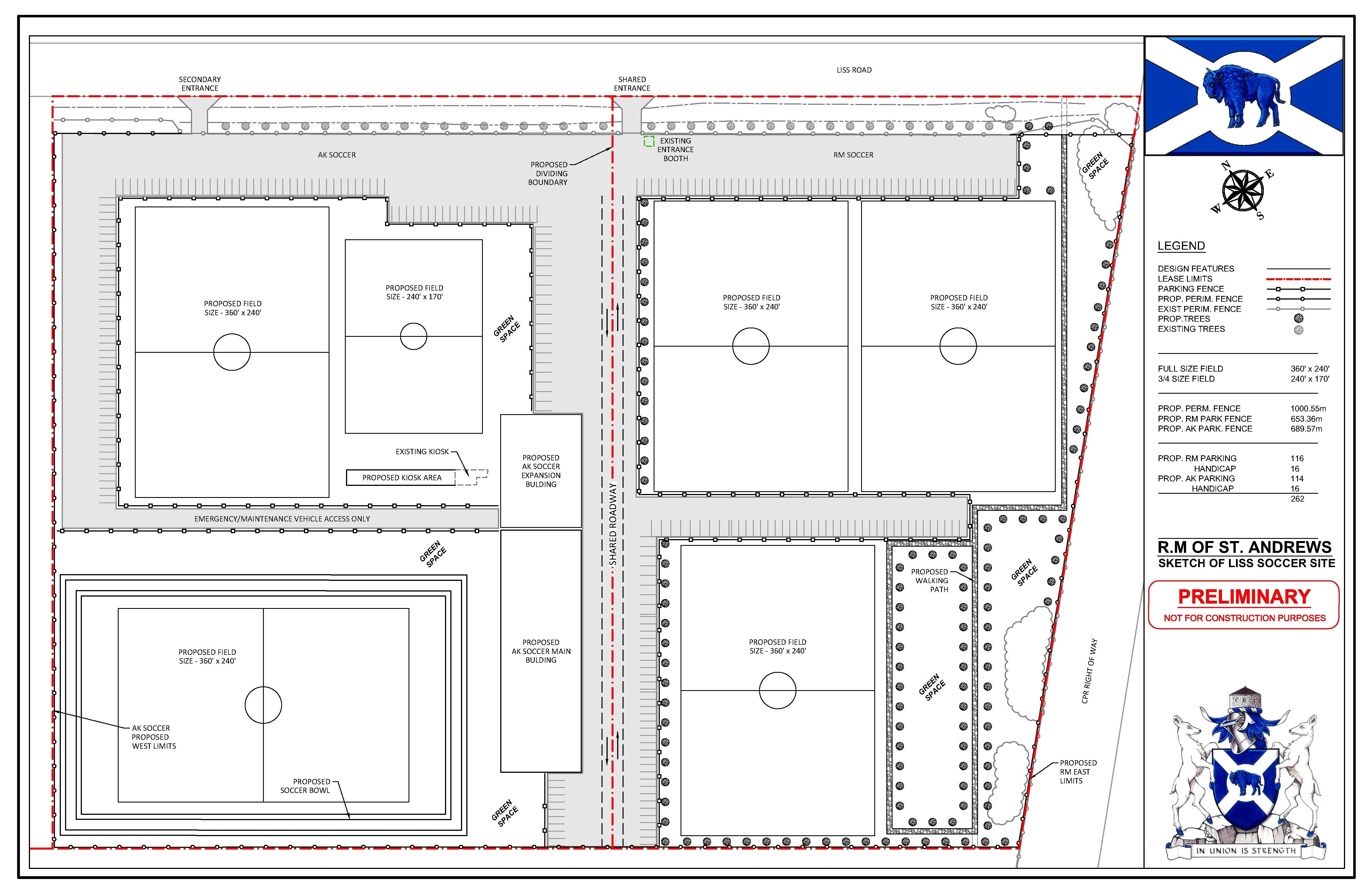
On November 24, 2025, Administration, including the CAO and Planning & Economic Development Officer, presented an update to Council on the Liss Road Project. The purpose of this update was to provide a clear layout of proposed municipal-owned fields and the revised leased area for AK Soccer Academy, reflecting the next stage of this recreational development.

The full-sized proposed site plan can be viewed here: Proposed Site Plan - Sketch of Liss Road Soccer Site
The presentation slides can be viewed here: Liss Road Site Proposal - RM of St. Andrews
Background & Project Need
- There is an increasing demand for youth soccer programs in the community, but limited field availability during peak months.
- The current airport site can no longer accommodate soccer after 2027, and its continued use presents safety and expansion challenges for the Airport.
- The Municipality’s long-term recreation development priorities emphasize providing safe, accessible, and high-quality facilities to residents, making Liss Road a key site for future growth.
Site Overview & Design
- The Liss Road site is municipally controlled and offers sufficient space for multi-field development with good access, frontage, and expansion potential.
- The updated concept plan proposes three full-size soccer fields, doubling the current field capacity available at the airport site.
- The municipal portion of the site is designed to include a parking area, accessible pathways, walking trails, and a linear park, ultimately integrated with the full 80-acre recreation area that has been designated for long-term recreational use.
- On-site infrastructure, including two pre-drilled wells and other improvements, have been provided by AK Soccer to support field and green space use.
Public-Private Partnership & Investments
- AK Soccer Academy has made significant contributions to the site, with an approximate investment of $1.36 million in physical improvements, labour, and equipment. This partnership demonstrates the value of collaboration between the Municipality and private organizations in enhancing community recreation.
- To help residents see how the site has developed over time, we've included visual snapshots of the site:
Project Timeline
2026 – Continued use of the airport site, with an option to remain in 2027 if required.
2027 – Two full-sized, municipal-owned soccer fields expected to be ready at the Liss Road site.
2028 – The third full-sized, municipal-owned soccer field is expected to be ready at the Liss Road site.
Next Steps & Lease Revision
- To implement this plan, the lease agreement with AK Soccer Academy will need to be revised to reflect the proposed site layout.
- Any lease revisions will be brought forward to Council for review, consideration, and approval before the Municipality commits to the proposed site plan.
This update represents an exciting milestone for recreational opportunities in St. Andrews, providing a modern and accessible space for soccer and community activities that residents of all ages can enjoy for years to come.
________________________________________________________________________________________________________________________________________
Updated Dec. 11, 2023:


The RM of St. Andrews is in the early stages of working with A.K. Soccer Academy to develop 10 acres of recreational land at 160 Liss Road. The proposed development would consist of indoor soccer fields for the Academy’s training facility and several outdoor soccer fields of varying sizes for shared recreational use.
The Municipality is pleased to be working with A.K. Soccer Academy on this exciting development that will further benefit and connect the community of St. Andrews!